Charmant stenen huis in het centrum van de mooie oude stad Vodice
Het stenen huis ligt in het centrum van Vodice en is verdeeld over drie verdiepingen met een totale woonoppervlakte van...
350.000€
Vodice
23450 Crna Punta, Kroatië
te koop
380.000€








Ten zuiden van de zee van Novigrad leidt een andere zeestraat naar de volgende binnenzee, de Karinsko More. Hier ligt het bouwproject dat al is begonnen in de eerste rij naar zee – een locatie die in de toekomst steeds moeilijker te vinden zal zijn. Omringd door vakantiehuizen en flatgebouwen, waarvan sommige al klaar zijn en andere nog in aanbouw, ligt het in een rustige maar centrale woonwijk. Alle voorzieningen zijn op loopafstand.
Op Karinsko More, ca. 35 km van Zadar, ca. 21 km van het vliegveld.
Hier können Sie mit Eigeninitiative Ihren Traum von einem Haus direkt am Meer erfüllen: Eine Baugenehmigung für das in den Jahren 1999/2000 errichtete Erdgeschoss liegt vor.
Ein Weiterbau wird trotz des unterschrittenen Mindestabstandes zum Strandgürtel Genehmigung finden. Die Vollendung liegt nun in Ihren Händen und bietet Ihnen selbstverständlich die Möglichkeit individuelle Gestaltungswünsche und Immobilienträume miteinfließen zu lassen. Die Grundmaße des zukünftigen Hauses betragen ca. 10 x 11,5 m. Die Kosten für den Strom- und Wasseranschluss wurden bereits vom derzeitigen Eigentümer bezahlt. Die entsprechenden Leitungen wurden schon bis auf 2 m an das Haus heran gelegt.
Nach Fertigstellung werden Sie die zeitlos mediterrane Schönheit des Karinsko More in unverbaubarer Sicht genießen können.





Het stenen huis ligt in het centrum van Vodice en is verdeeld over drie verdiepingen met een totale woonoppervlakte van...
350.000€





Liebhaber des geschmackvollen, gemütlichen Lebens möglichst nah am Meer finden hier das perfekte Anwesen. Diese...
360.000€
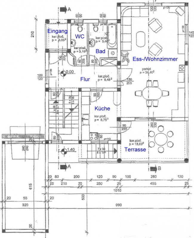
Alleen in een dubbelpak: Twee zeer goed onderhouden huizen tegenover elkaar met in totaal vijf wooneenheden
Owning a home is a keystone of wealth… both financial affluence and emotional security.
Suze Orman